诚心出售,家电家具全送,看房方便¥105万
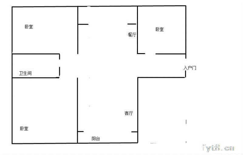
核心卖点 位置:东城新区,主干道位置户型:户型方正,南北朝向,通风好,送大阳台装修:精装修,无偿赠与部分面积产权:产权清晰,70年产权水电:民用水电,通天然气交通:交通便利,出门就是主干道,小区停车位充足配套:周边配套完善,市医院、市政府、学校、公园、大润发广场因有尽有! 业主心态 业主因去外地发展,现出售此住房一套。业主态度良好,房屋手续齐全,价格公道,看房方便,节省您的时间和精力房东诚心出售,欢迎前来看房! 服务介绍 收取服务费:最高10500元(≤1.0%) 三方签约,透明交易,不吃差价本人发布的所有房源真实,为人诚信可靠!对于房子的优缺点决不隐瞒,房源信息真实,给您一个干净真实的购房环境。热情服务!因为专业,所以值得信赖!选择我,选择专业!本人主要负责房屋抵押贷款,受理房产过户,二手房买卖业务,无论价位,户型或周边信息我都可以为您做专业、详细的介绍,为您买卖房屋提供安全的保障,您的满意就是我的动力。不是你没有遇到称心如意的房子,也不是你没有遇到合适的价格,而是没有遇到为你全力以赴的房产经纪人,请选择你我他房产竭诚为你服务 房源编号 房源编号:1097670444179456
联系方式
提示:联系我时,请说明在怀化信息网看到的,谢谢!
最新相关信息:













